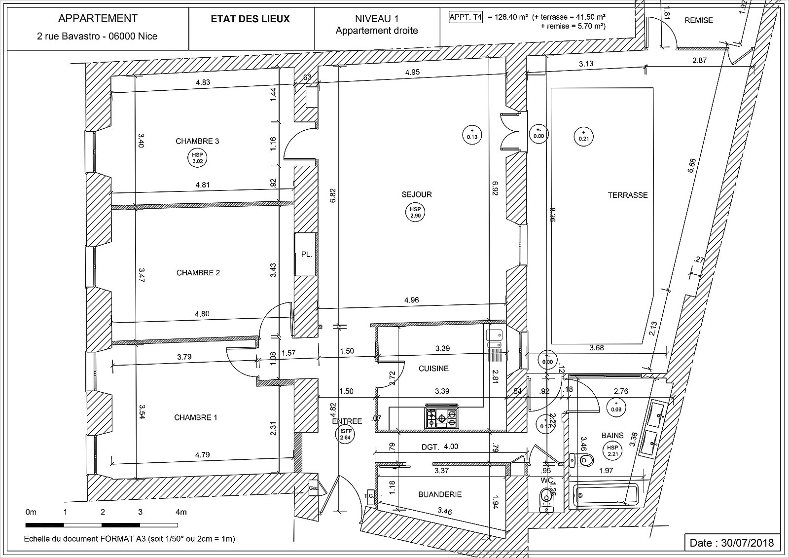
Projet de transformation d'un appartement à Nice
Création d'un T2 et d'un T4
Janvier 2019 - pour VALORYAS
Notre site Ayreon-Seven Communication - Illustrateur 3D Architecture à Nice utilise des cookies pour réaliser des statistiques de visites, partager des contenus sur les réseaux sociaux et améliorer votre expérience. En refusant les cookies, certains services seront amenés à ne pas fonctionner correctement. Nous conservons votre choix pendant 30 jours. Vous pouvez changer d'avis en cliquant sur le bouton 'Cookies' en bas à gauche de chaque page de notre site. En savoir plus
Ce site utilise des cookies pour assurer son bon fonctionnement et ne peuvent pas être désactivés de nos systèmes. Nous ne les utilisons pas à des fins publicitaires. Si ces cookies sont bloqués, certaines parties du site ne pourront pas fonctionner.
Ce site utilise des composants tiers, tels que ReCAPTCHA, Google Maps, MailChimp ou Calameo, qui peuvent déposer des cookies sur votre machine. Si vous décider de bloquer un composant, le contenu ne s’affichera pas
Des plug-ins de réseaux sociaux et de vidéos, qui exploitent des cookies, sont présents sur ce site web. Ils permettent d’améliorer la convivialité et la promotion du site grâce à différentes interactions sociales.
Ce site web utilise un certain nombre de cookies pour gérer, par exemple, les sessions utilisateurs.